0
Réf : 11347JL2

TOULON - CAP BRUN - MAISON 92M²

Toulon (83000)
642 000 €

A propos de ce bien

Découvrez une adresse d'exception à proximité des plages et au cœur du quartier Cap Brun à Toulon.
A l'abri des regards, derrière un muret de pierres conservé, un espace boisé classé agrémenté d'une ancienne fontaine annonce l'esprit des lieux. 
Chacun y trouvera son style de vie : maisons de ville avec jardins privatifs face à l'espace boisé, ou appartements en petites bastides d'inspiration contemporaine entourées de jardins en restanques. A l'extérieur comme à l'intérieur, la conception des espaces de vie répond aux plus fortes exigences : terrasse ou jardin privatif, appartements 4 pièces en duplex avec ascenseur privatif, prolongés de terrasses et tropéziennes avec spas, offrant des vues panoramiques sur le Monts Faron et Coudon, séjour jusqu'à 60 m², suite parentale, chambre avec balcon... Les prestations sont à la hauteur du standing des lieux : sécurité renforcée, matériaux nobles, pompe à chaleur et rafraîchissement d'air. 
Dans l'un des quartiers les plus prisés de Toulon, le Cap Brun offre toutes les composantes d'un art de vivre en tous points remarquable. 
Ici la ville est une véritable villégiature : les criques secrètes de Méjean et Magaud, les plages du Mourillon et ses restaurants, l'accueil chaleureux des petits commerces, ses rues élégantes ponctuées de villas et résidences au cœur de jardins luxuriants

Descriptif du bien

TRAD_PAMPERO_Caracteristique Valeurs
Code postal 83000
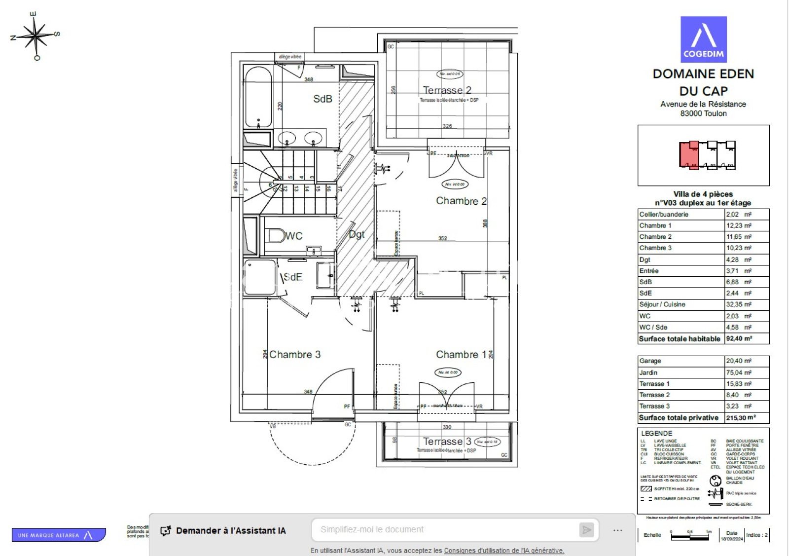
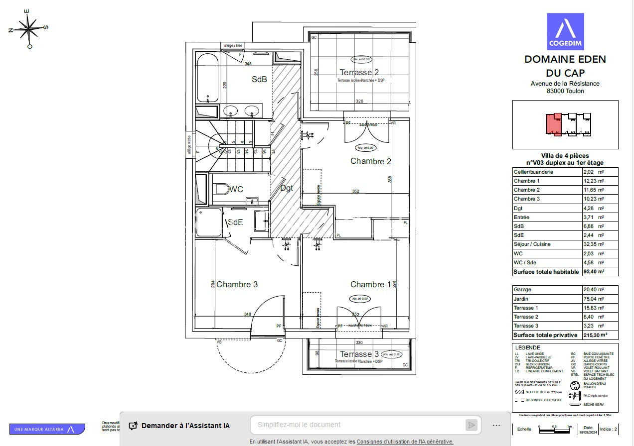
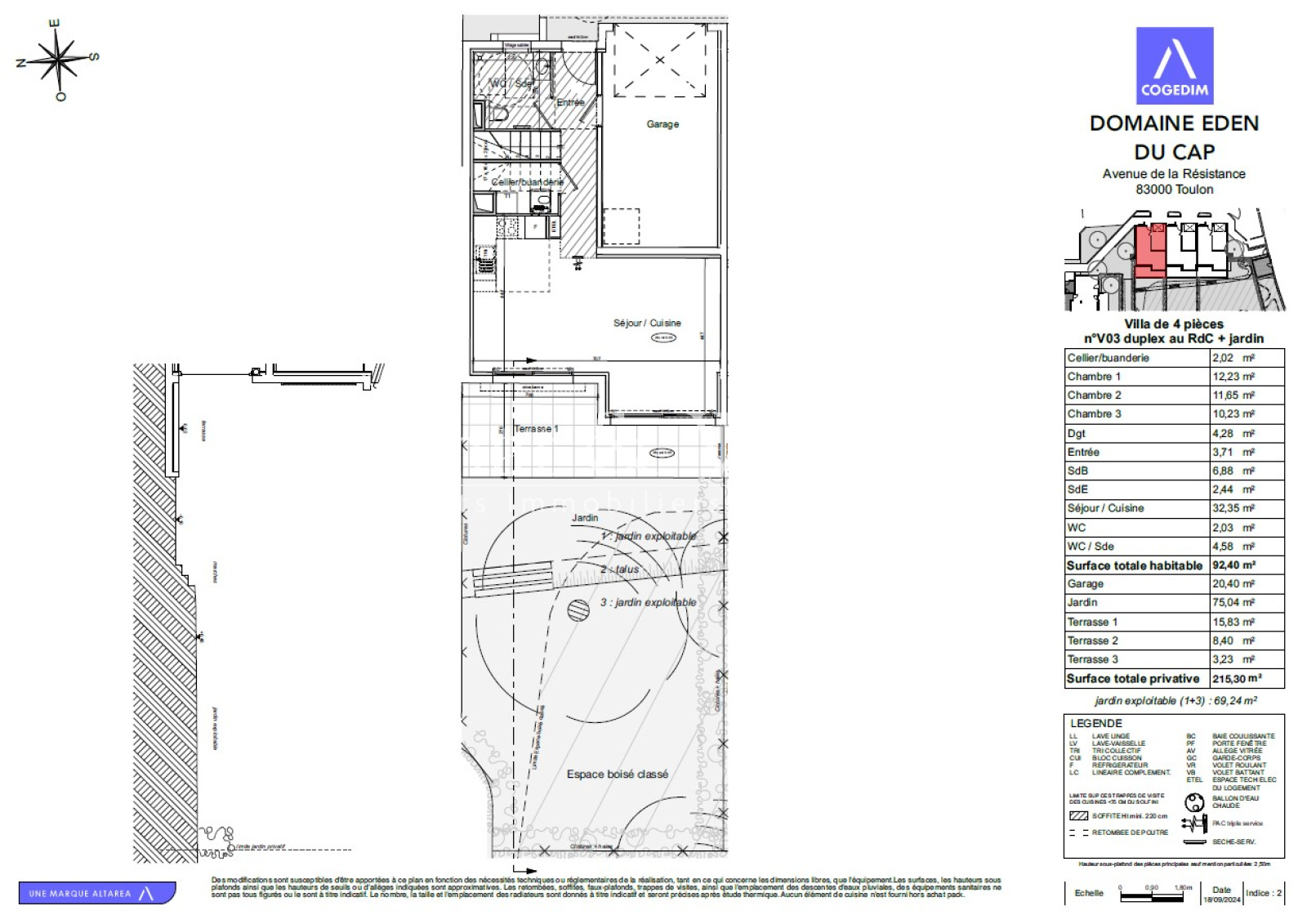
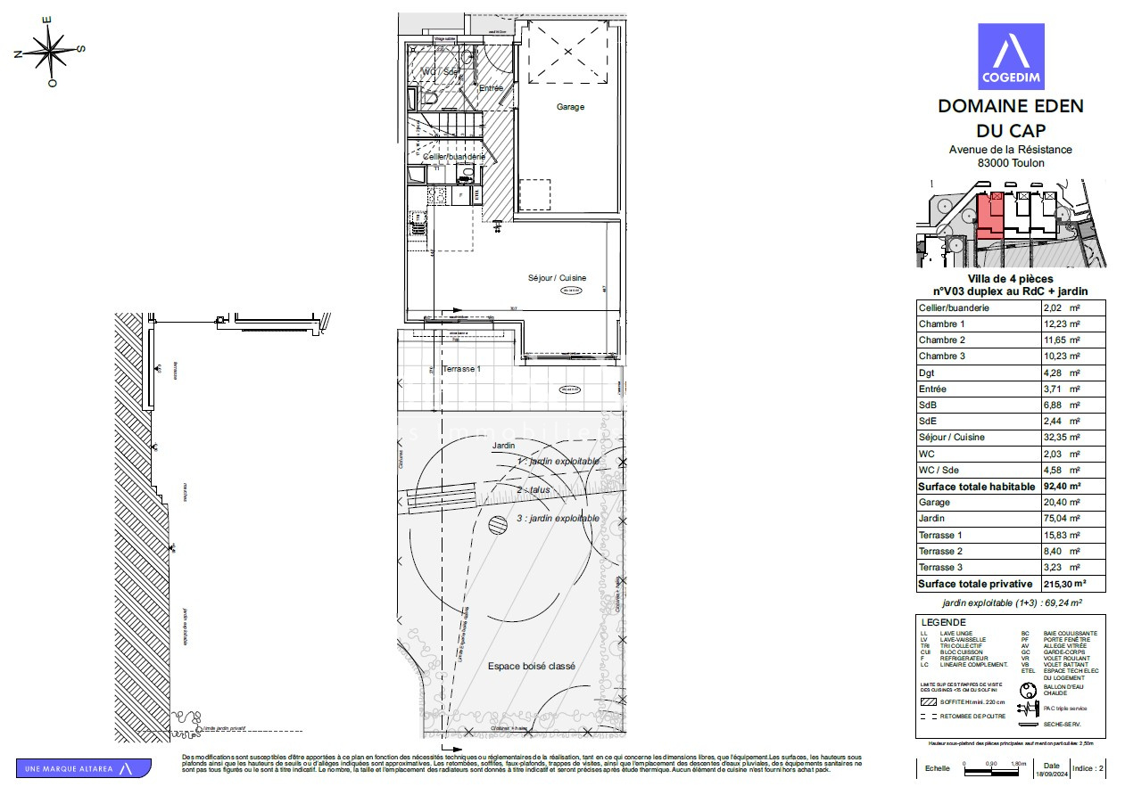
Surface habitable (m²) 92 m²
Surface loi Carrez (m²) 92 m²
Nombre de chambre(s) 3
Nombre de pièces 4
Nombre de niveaux 1
Vue jardin
TRAD_PAMPERO_Caracteristique Valeurs
Nb de salle de bains 1
Nb de salle d'eau 2
Cuisine Américaine
Mode de chauffage Autre
Type de chauffage Autre
Format de chauffage Individuel
Nombre de garage 1
Exposition Ouest
Année de construction 2027
Quartier CAP BRUN, cap-brun
TRAD_PAMPERO_Caracteristique Valeurs
Copropriété OUI
TRAD_PAMPERO_Caracteristique Valeurs
Prix de vente honoraires TTC inclus 642 000 €
DPE GES
Ce bien vous intéresse ?
Fieldset par défaut
Fieldset par défaut
Validation

* Champs obligatoires

Contacter l'agence
Validation
Les informations recueillies sur ce formulaire sont enregistrées dans un fichier informatisé par La Boite Immo agissant comme Sous-traitant du traitement pour la gestion de la clientèle/prospects de l'Agence / du Réseau qui reste Responsable du Traitement de vos Données personnelles. La base légale du traitement repose sur l'intérêt légitime de l'Agence / du Réseau. Elles sont conservées jusqu'à demande de suppression et sont destinées à l'Agence / au Réseau. Conformément à la loi « informatique et libertés », vous disposez des droits d’accès, de rectification, d’effacement, d’opposition, de limitation et de portabilité de vos données. Vous pouvez retirer votre consentement à tout moment en contactant directement l’Agence / Le Réseau. Consultez le site https://cnil.fr/fr pour plus d’informations sur vos droits. Si vous estimez, après avoir contacté l'Agence / le Réseau, que vos droits « Informatique et Libertés » ne sont pas respectés, vous pouvez adresser une réclamation à la CNIL. Nous vous informons de l’existence de la liste d'opposition au démarchage téléphonique « Bloctel », sur laquelle vous pouvez vous inscrire ici : https://www.bloctel.gouv.fr Dans le cadre de la protection des Données personnelles, nous vous invitons à ne pas inscrire de Données sensibles dans le champ de saisie libre.
Ce site est protégé par reCAPTCHA, les Politiques de Confidentialité et les Conditions d'Utilisation de Google s'appliquent.