0
Réf : 11135 JL
Sous-offre
Prix en baisse

FRONT DE MER - 1ERE LIGNE - MOURILLON

Toulon (83000)
599 000 €

A propos de ce bien

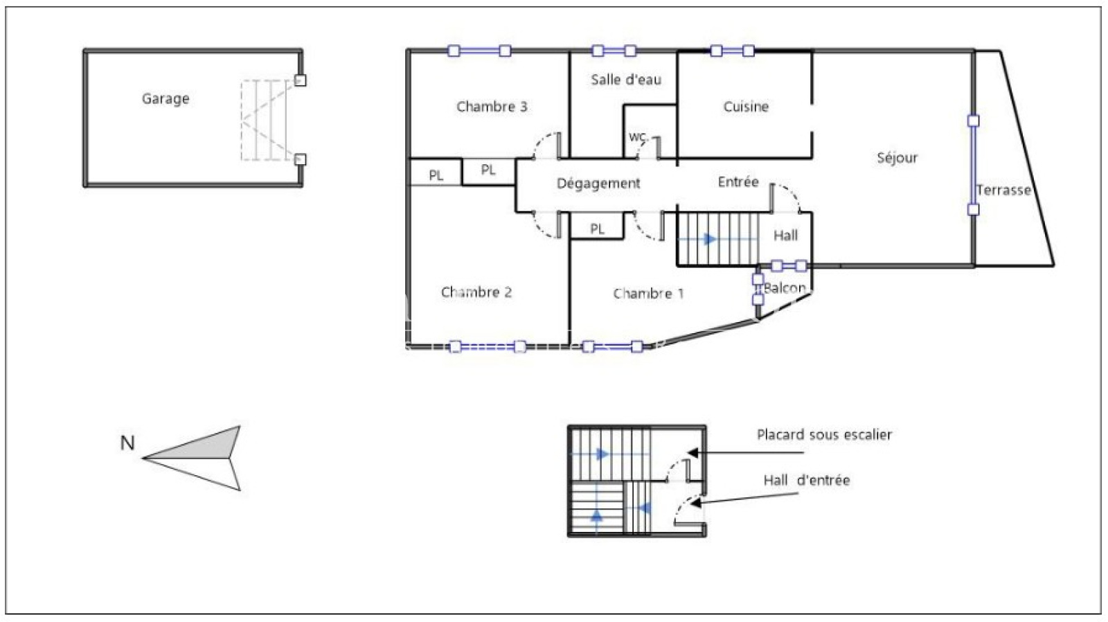
L'agence Canat & Warton a le plaisir de vous proposer cet appartement en front de mer, au 2ème et dernier étage d'une petite copropriété intimiste à Toulon au mourillon.

Au sein d'une petite copropriété de seulement deux appartements, vous trouverez un appartement de 90m² à rénover avec terrasse vue mer.
Composé d'une entrée, salon et salle à manger, cuisine séparée, 3 chambres, une salle d'eau et wc séparés.
Depuis, la cuisine, salon et salle à manger vous profiterez d'une vue sur la mer. La cuisine peut s'ouvrir sur la pièce à vivre.
L'accès de l'appartement est situé au premier étage, et vous profiterez d'un escalier intérieur privé pour accéder à l'appartement. Vous disposez d'un placard de rangement au 1er étage.

Vous bénéficierez d'un grand garage de 26.5m² avec mezzanine en supplément au rez de chaussée de la copropriété. Inconstestablement un gros atout dans cet emplacement.
Pas de charges de copropriété.

Un très beau potentiel dans un bel environnement. Une offre rare sur le marché.
N'hésitez pas à nous contacter pour plus de renseignements ou programmer une visite.


Les informations sur les risques auxquels ce bien est exposé sont disponibles sur le site Géorisques

Descriptif du bien

TRAD_PAMPERO_Caracteristique Valeurs
Code postal 83000
Surface habitable (m²) 91 m²
Surface loi Carrez (m²) 91 m²
Nombre de chambre(s) 3
Nombre de pièces 4
Etage 2
Ascenseur NON
Vue mer
TRAD_PAMPERO_Caracteristique Valeurs
Nb de salle d'eau 1
Cuisine Séparée
Type de cuisine Equipée
Mode de chauffage Electrique
Type de chauffage Convecteur
Format de chauffage Individuel
Terrasse OUI
Nombre de garage 1
Exposition Sud
Année de construction 1958
Quartier MOURILLON
TRAD_PAMPERO_Caracteristique Valeurs
Copropriété OUI
Lot n° 2 et 4
nombre de lots 4
TRAD_PAMPERO_Caracteristique Valeurs
Prix de vente honoraires TTC inclus 599 000 €
Taxe foncière annuelle 2 132 €
DPE GES
Ce bien vous intéresse ?
Fieldset par défaut
Fieldset par défaut
Validation

* Champs obligatoires

Contacter l'agence
Validation
Les informations recueillies sur ce formulaire sont enregistrées dans un fichier informatisé par La Boite Immo agissant comme Sous-traitant du traitement pour la gestion de la clientèle/prospects de l'Agence / du Réseau qui reste Responsable du Traitement de vos Données personnelles. La base légale du traitement repose sur l'intérêt légitime de l'Agence / du Réseau. Elles sont conservées jusqu'à demande de suppression et sont destinées à l'Agence / au Réseau. Conformément à la loi « informatique et libertés », vous disposez des droits d’accès, de rectification, d’effacement, d’opposition, de limitation et de portabilité de vos données. Vous pouvez retirer votre consentement à tout moment en contactant directement l’Agence / Le Réseau. Consultez le site https://cnil.fr/fr pour plus d’informations sur vos droits. Si vous estimez, après avoir contacté l'Agence / le Réseau, que vos droits « Informatique et Libertés » ne sont pas respectés, vous pouvez adresser une réclamation à la CNIL. Nous vous informons de l’existence de la liste d'opposition au démarchage téléphonique « Bloctel », sur laquelle vous pouvez vous inscrire ici : https://www.bloctel.gouv.fr Dans le cadre de la protection des Données personnelles, nous vous invitons à ne pas inscrire de Données sensibles dans le champ de saisie libre.
Ce site est protégé par reCAPTCHA, les Politiques de Confidentialité et les Conditions d'Utilisation de Google s'appliquent.