Description du bien
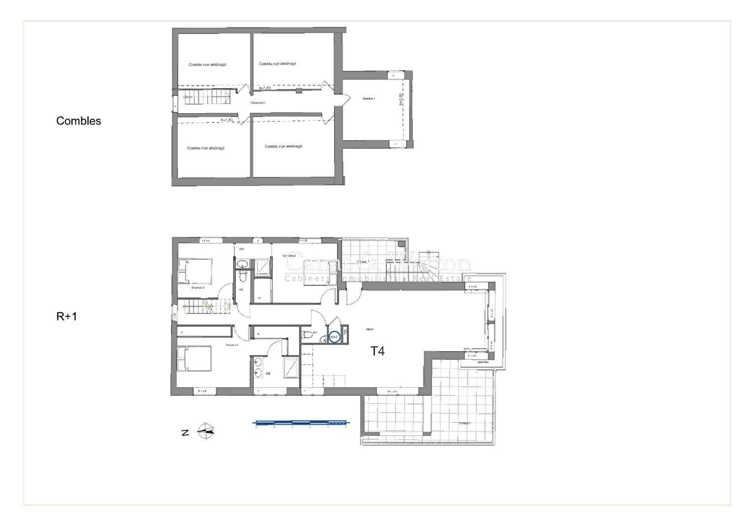
Situé dans un secteur privilégié de Saint-Raphaël, cet appartement offre un bel aperçu mer et bénéficie d'un environnement calme et résidentiel.Il se trouve au premier et dernier étage d'une élégante villa des années 1960, entièrement rénovée et divisée en trois appartements de standing.D'une surface habitable de 122 m², cet appartement dispose de combles aménagés et propose de beaux volumes. La pièce de vie, particulièrement lumineuse, offre 50 m² d'espace ouvert sur l'extérieur, créant une atmosphère à la fois chaleureuse et contemporaine.Une vaste terrasse d'angle de 32 m² complète l'ensemble, idéale pour profiter du climat méditerranéen en toute tranquillité.La rénovation de qualité allie avec élégance le charme de l'ancien et le confort moderne, pour un bien à la fois authentique et fonctionnel.À seulement quelques minutes de la mer, des commerces et de toutes les commodités, cet appartement constitue un bien rare, parfait pour une résidence principale ou secondaire.Copropriété de 3 lots (Pas de procédure en cours).

